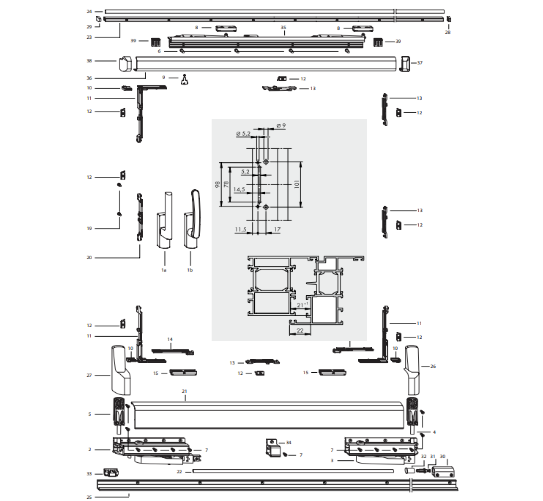
CIERRE CENTRAL PSK-LM PLUS

Código 90-MMZV0040-100 Categoría

Marca: VBH

Compartir: